振動篩12年生產廠家
過濾,除雜,分級

200t/h生產能力:
9.0m²篩面面積:
50mm分級粒度:
特點:產量高,可篩分物料比較廣泛,雙振動電機激振力大
適用:應用于耐火材料、砂石、冶金、建材、磨料等行業

全國統一銷售熱線


概率篩是一種能動地利用概率篩分原理的篩分機。通常所說的概率篩是振動概率篩,其篩面是靠激振裝置進行直線振動的。這種概率篩目前已廣泛地應用于冶金、建材及煤炭等工業部門,用于對中、細粒物料的粒度分級。振動概率篩采用多層(一般為3~6層)、大傾角(一般為30°~60°)、大篩孔(篩孔尺寸是分離粒度的2~10倍)的篩面。

它與普通振動篩也有明顯的差別,概率篩能動地利用了概率原理,從而以很快的速度完成整個篩分過程,使物料篩分所需的時間僅為變通振動篩的1/3~1/20,而其單位篩面面積的處理能力比普通振動篩大5~10倍。因此,可以認為在概率篩中所進行的篩分屬于"快速篩分"。

概率篩工作原理基于概率篩分理論。在概率篩中,物料通過篩面時,顆粒在篩孔上發生多次碰撞和運動。由于篩孔的形狀和布局設計合理,顆粒在篩孔上的碰撞次數增加,從而提高了顆粒與篩孔接觸的概率。較大顆粒會沿著篩孔滾動,而較小顆粒則穿過篩孔。概率篩通常包括多層篩面,每層篩面上的篩孔形狀和尺寸不同,以增加篩分效率。通過多次碰撞和運動,概率篩可以實現高效的顆粒分級和篩分。概率篩的工作原理有效利用了顆粒在篩孔上的運動特性,是重要的篩分設備之一。
| 型號 | 篩面 | 物料粒度(mm) | 驅動電機 | 振次(1/min) | 雙振幅(mm) | 生產能力(t/h) | 篩分效率 | |||||
| 篩面層數 | 篩面結構 | 分級粒度(mm) | 篩面面積(m²) | 篩面傾度(°) | 型號與規格 | 功率(kw) | ||||||
| GLS0615 | 2-8 | 編 織 網 |
~50 | 0.9n | 5--30 | ≤50 | YZ08-6 | 055×2 | 960 | 5--8 | 15-50 | ≥95% |
| GLS0820 | 1.6n | YZ010-6 | 0.75 ×2 | 15-50 | ||||||||
| CLS1018 | 1.8n | YZ016-6 | 1.1×2 | 30-120 | ||||||||
| GLS1020 | 2.0n | YZ016-6 | 1.1×2 | 30-120 | ||||||||
| GLS1224 | 2.9n | YZ020-6 | 1.5×2 | 30-120 | ||||||||
| GLS1530 | 4.5n. | YZ040-6 | 3.0×2 | 30-160 | ||||||||
| GLS1536 | 5.4n | YZ040-6 | 3.0×2 | 30-160 | ||||||||
| GLS1830 | 5.4n | YZ040-6 | 3.0×2 | 30-180 | ||||||||
| GLS1845 | 8.1n | YZ040-6 | 3.0×2 | 30-180 | ||||||||
| GLS2030 | 6.0n | YZ050-6 | 3.7×2 | 50-200 | ||||||||
| GLS2045 | 9.0n | YZ050-6 | 3.7×2 | 50-200 | ||||||||
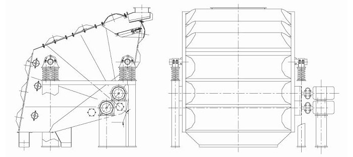
概率篩主要由篩箱、激振器和支承(吊掛)裝置、減震裝置等部分組成。


篩箱:
篩箱有鋼板電焊而成,側板與橫梁采用優質耐熱不銹鋼或優質耐熱鋼制造,主受力板和側板的連接,側板和橫梁的連接采用環槽鉚釘鉚接,連接緊固可靠。
作用:①限制物料的運動面積,防止物料在篩分過程中出現溢散現象,②配合機殼放在外界灰塵進入,防止干擾物料的正常篩分。
激振器:
概率篩激振器是咖喱篩的核心結構,是由兩個單不平衡重振動器組合而成的,由裝在兩根振動軸端的一對惰齒輪使它們強迫聯系起來(也可以由雙電機驅動)。
作用:激振器產生激振力后將其施加到設備上,再使得篩分物料受到一定形式和大小的振動力,從而實現對物料的篩分作業。
概率篩的支承(吊掛)裝置:支承裝置由彈簧、彈簧的上、下支座、定位塊、篩箱耳軸和摩擦阻尼器等組成。
作用:防止共振現象產生,防止篩箱產生橫向擺動。
減震主裝置:即減震彈簧,減震彈簧的安放位置就是在概率篩的篩體和篩座之間。
作用:①降低了噪音,②可以減少振動力對機器造成的損耗,對機器進行保護。
概率篩具有多項顯著特點,使其成為一種高效、精準的篩分設備:

1、概率篩使用范圍廣,可分為普通型和防腐型,細可分級0.2毫米的物料。
2、概率篩處理量更大,在保證普通篩機篩分精度的基礎上產量可提高2-4倍。
3、篩網不堵孔、不變形,物料不串層。
4、換網方便快捷,可控制在30分鐘以內。
5、噪音低、密封好,利于。
6、人性化設計便于工藝布置。
7、可單機得到4-7種粒級物料,也可多層得到2種粒級物料以提高更高精度和產量。
8、振動概率篩體積小、重量輕、篩孔不易堵塞
9、概率篩能使粒徑小的碎碴得到較多的篩分,而粒徑大的碎碴其篩分則很少,從而大大地提高了篩分率,可延長清篩周期一倍左右
概率篩廣泛用于輕工、化工、制藥、糧食、食品等行業對細粒、粉狀物料進行干式篩粉使用。如:干粉砂漿、機制砂、天然砂、石英砂、珍珠巖、白云石、方解石、鉀長石等各種石粉和礦粉顆粒白糖、原鹽、食用鹽等。


輕工業:概率篩可用于輕工業領域,如干粉砂漿、機制砂等顆粒的篩分,提高產品質量和生產效率。
化工工業:在化工行業中,概率篩可用于石粉和礦粉的篩分,如天然砂、石英砂、珍珠巖等物料的篩選和分級。
制藥行業:概率篩在制藥領域也有應用,用于藥品原料的篩分和粒度控制,確保藥品質量。
糧食加工業:在糧食行業中,概率篩可用于糧食加工過程中的篩分操作,提高糧食加工效率。
食品行業:概率篩適用于食品行業,如白糖、原鹽、食用鹽等食品原料的篩分,確保食品生產的質量和安全。

公司簡介
大漢振動機械成立以來,一直專注于振動篩分技術的發展。大漢廠家始終秉承著質量第一、客戶至上的原則,為客戶提供專業的技術支持和完善的售后服務。
產品優勢
高效篩分:大漢概率篩采用獨特的多層篩網設計,能夠快速、高效地處理大批量物料。
堅固耐用:采用優質材料,精密制造,確保設備的耐用性和穩定性。
定制化服務:根據客戶需求,提供個性化設計,滿足不同工況和行業的要求。
應用領域
大漢概率篩廣泛應用于礦山、化工、冶金、建材等行業,特別適合處理顆粒大小不均的物料。
售后服務
公司提供全面的售后支持,包括設備安裝、調試和技術咨詢,確保客戶滿意。大漢憑借優質產品和服務,贏得了市場的良好口碑。